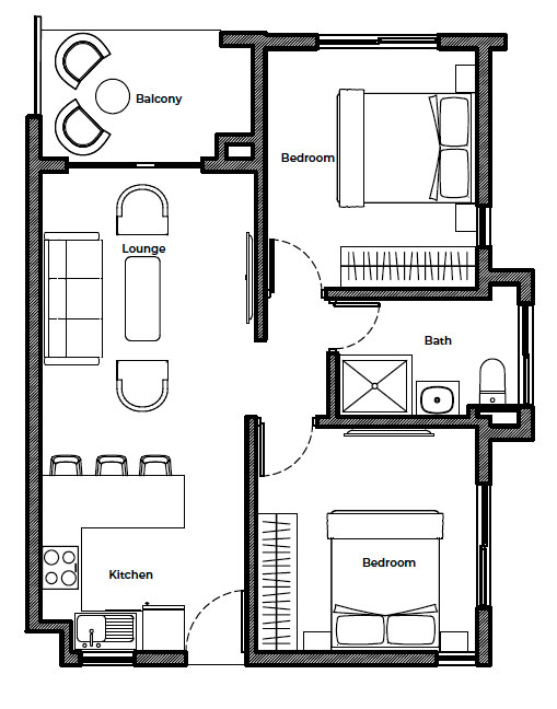
The 2-bedroom option at Trasacco Park offers 67.5 sqm (726.5 sq.ft) of living space, with two bedrooms, a modern bathroom, and a fitted kitchen. Each unit includes a car park, ideal for small families or professionals. Residents enjoy lush green surroundings and recreational amenities for a comfortable lifestyle. Each apartment includes a dedicated car parking space for further convenience.

Type A: 67.5 sqm / 726.5 sq.ft
Type B: 59 sqm / 635 sq.ft







